8640 Sw 7th LaneOkeechobee, FL 34974Price: $439,000

  • Price: $439,000
  • Est. Mortgage of $/month
  • 129 Days on Market
$
$
%
$/month over payments
Federal 30-year interest rate: 6.09% last updated on Feb 12, 2026
* All Figures are estimates. Check with your bank or proposed mortgage company for actual interest rates.
This product uses the FRED® API but is not endorsed or certified by the Federal Reserve Bank of St. Louis.
  • $439,000List Price
  • 4Bedrooms
  • 1,790Square Feet
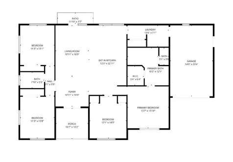
EDGEWATER ACRES ~ This 2024 CBS home on 1/2 an acre, features beautiful exterior stone detailing, a 1-car garage, & a spacious open concept layout. It boasts 1,790 sq ft of living space, & a total of 2,224 sq ft under air. This versatile home offers 4 rooms & 2 full bathrooms. You can enjoy a 3-bdrm layout w/ a dedicated dining room or a 4-bdrm configuration without a separate dining area. The kitchen features SS appliances, quartz countertops, & a large kitchen island w/ a built-in sink that doubles as a kitchen table, offering storage on both ends.The master bathroom is a true highlight, featuring a contemporary stand-alone tub, a large walk-in tiled shower, double vanity, & a walk-in closet. Throughout the main living area, you'll find elegant crown molding and chandeliers. Additional unique touches include sliding barn doors for the 4th room and French doors leading to the backyard. The hallway that connects to the garage conveniently houses a pantry and a laundry room. All measurements are approximate.

Property Details of 8640 Sw 7th Lane

Property Details

Never Miss New Listings

Never miss new listings between $395,000 - $483,000 in this neighborhood
Successfully Subscribed!
Do not fill in this field:

I agree to receive marketing and customer service calls and text messages from Miller Group. To opt out, you can reply 'stop' at any time or click the unsubscribe link in the emails. Consent is not a condition of purchase. Msg/data rates may apply. Msg frequency varies. Privacy Policy.

We will never spam you or sell your details. You can unsubscribe whenever you like.

Mortgage Calculator


$
$
%
Est. Mortgage:
$/month over payments
Federal 30-year interest rate: 6.09% last updated on Feb 12, 2026. * The above figures are estimates provided by Union Street Media using the FRED® API, and are not endorsed or certified by the Federal Reserve Bank of St. Louis. Check with your lender for actual interest rates.
Listed by Krystal Moore of R&R Property Group

Beaches MLS All listings featuring the BMLS logo are provided by BeachesMLS, Inc. This information is not verified for authenticity or accuracy and is not guaranteed. Copyright ©2026 BeachesMLS, Inc. 

Hi there! How can we help you?

Contact us using the form below or give us a call.

Send Us A Message:

I agree to receive marketing and customer service calls and text messages from Miller Group. To opt out, you can reply 'stop' at any time or click the unsubscribe link in the emails. Consent is not a condition of purchase. Msg/data rates may apply. Msg frequency varies. Privacy Policy.

Do not fill in this field:

This site is protected by reCAPTCHA and the Google Privacy Policy and Terms of Service apply.